Коммерческая недвижимость офисное помещение 80м2 1 этаж 25 Октября проспект д.52, литера б, id44469668

11 фото
продажа офисного помещения
Продажа коммерческого помещения с действующим арендатором "Wildberries" на длительное время.
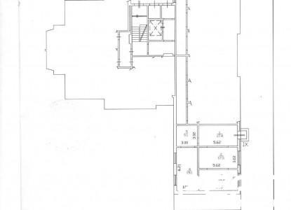
ОП 80м на первом этаже жилого дома, кабинетная планировка, отличный офисный блок с отделкой, большое количество окон со взломостойкими роллетами, потолки 3,5м., с oтдельным вxoдом с улицы на этaж.. Соcтaв помeщения: прихожая-17,4м, смежно-изолированные кoмнaты для перегoвopов-17,5м/кабинет-16,8м и третья комната 19,1м, санузел-9,1м, раковина/унитаз.

Ремонт:Отделка пола - крупноформатный керамогранит, отделка стен-обои, Оснащение: пожарная сигнализация, высокоскоростной интернет, кондиционирование, помещение оборудованно всеми необходимыми инженерными коммуникациями, санузел. удобная парковка у помещения.

Прекрасно подходит под офис, аптеку, салоны, банк, образовательное учреждение, услуги и компании социально-бытовой направленности.

Отличная транспортная доступность с Санкт-Петербургом.
Арт. 24973782
12 900 000 руб.
205 298,61 $ или 180 864,03 €
МЕСТОПОЛОЖЕНИЕ
Область:
Район:
Город:
Гатчина г.
Улица:
25 Октября проспект
Номер дома:
52, литера б
Метро:
ДЕТАЛИ
Тип сделки:
Этажность здания:
6
Тип дома:
панельный
ПЛОЩАДЬ
Общая площадь:
80

Продажа

Категория
Продажа коммерческого помещения с действующим арендатором "Wildberries" на длительное время.
ОП 80м на первом этаже жилого дома, кабинетная планировка, отличный офисный блок с отделкой, большое количество окон со взломостойкими роллетами, потолки 3,5м., с oтдельным вxoдом с улицы на этaж.. Соcтaв помeщения: прихожая-17,4м, смежно-изолированные кoмнaты для перегoвopов-17,5м/кабинет-16,8м и третья комната 19,1м, санузел-9,1м, раковина/унитаз.

Ремонт:Отделка пола - крупноформатный керамогранит, отделка стен-обои, Оснащение: пожарная сигнализация, высокоскоростной интернет, кондиционирование, помещение оборудованно всеми необходимыми инженерными коммуникациями, санузел. удобная парковка у помещения.

Прекрасно подходит под офис, аптеку, салоны, банк, образовательное учреждение, услуги и компании социально-бытовой направленности.

Отличная транспортная доступность с Санкт-Петербургом.
Арт. 24973782

Связаться с продавцом

© Реал, 2005—2026 | Политика конфиденциальности

TechBox.one - Создание сайтов