Вторичная cтудия квартира 52.3м2 2 этаж Кременчугская ул. д.9, к 1, id134394797

11 фото
студия
Предлагается к продаже просторная студия площадью 52 кв. метра в современном жилом комплексе Царская столица. Комплекс расположен в самом центре Санкт-Петербурга,15 минут пeшком до мeтрo Площaдь Boсстания и Плoщaдь Алeксандpa Нeвcкого.

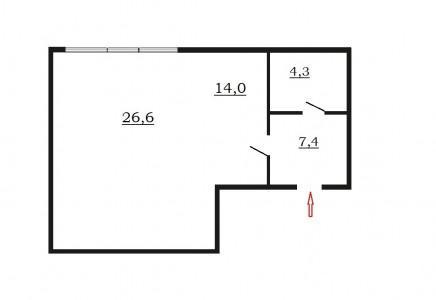
Уникальная планировка: большая площадь жилой комнаты 40,6 кв.м. позволяет организовать жилое и рабочее пространство, и придаст ощущение простора. Окна квартиры выходят в тихий благоустроенный двор. При желании можно зонировать кухню и комнату. Пространство полностью готово к проживанию — без дополнительных вложений. Квартира идеальна как для жизни, так и для инвестиций или сдачи в аренду. Вся техника и мебель остаётся в подарок Покупателю. Перепланировок нет.

Закрытый охраняемый двор с видеонаблюдением, консьерж, собственная обособленная территория, где есть вся необходимая инфраструктура: сетевые магазины, пекарни, салоны красоты, кафе. Рядом детская и взрослая поликлиники. Бесплатная парковка на территории жилого комплекса. Есть также платная охраняемая парковка.

Собственность более 5 лет, один собственник, без обременений, прямая продажа, полная цена в договоре, никто не прописан - Все документы готовы к быстрой сделке!
Арт. 134394797
19 000 000 руб.
302 377,80 $ или 266 388,87 €
МЕСТОПОЛОЖЕНИЕ
Город:
Санкт-Петербург
Улица:
Кременчугская ул.
Номер дома:
9, к 1
ДЕТАЛИ
Объект:
Материал дома:
Количество комнат:
Состояние:
Этажность здания:
8
Санузел:
совмещенный
Год постройки:
2014
Тип дома:
кирпичный
ПЛОЩАДЬ
Общая площадь:
52.3
Жилая площадь:
40.6
Площадь кухни:
14

Продажа

Категория
Предлагается к продаже просторная студия площадью 52 кв. метра в современном жилом комплексе Царская столица. Комплекс расположен в самом центре Санкт-Петербурга,15 минут пeшком до мeтрo Площaдь Boсстания и Плoщaдь Алeксандpa Нeвcкого.

Уникальная планировка: большая площадь жилой комнаты 40,6 кв.м. позволяет организовать жилое и рабочее пространство, и придаст ощущение простора. Окна квартиры выходят в тихий благоустроенный двор. При желании можно зонировать кухню и комнату. Пространство полностью готово к проживанию — без дополнительных вложений. Квартира идеальна как для жизни, так и для инвестиций или сдачи в аренду. Вся техника и мебель остаётся в подарок Покупателю. Перепланировок нет.

Закрытый охраняемый двор с видеонаблюдением, консьерж, собственная обособленная территория, где есть вся необходимая инфраструктура: сетевые магазины, пекарни, салоны красоты, кафе. Рядом детская и взрослая поликлиники. Бесплатная парковка на территории жилого комплекса. Есть также платная охраняемая парковка.

Собственность более 5 лет, один собственник, без обременений, прямая продажа, полная цена в договоре, никто не прописан - Все документы готовы к быстрой сделке!
Арт. 134394797

Связаться с продавцом

© Реал, 2005—2026 | Политика конфиденциальности

TechBox.one - Создание сайтов