Загородная недвижимость жилой дом 101м2 Московская ул. д.32, id109355793

16 фото
Жилой дом с участком 12 сот. ИЖС
Только звонить с 10.00 до 20.00.

Свой ДОМ! Нева! Лес!

25 км. от Санкт-Петербурга, в пос. Невская Дубровка, в окружении лесов, неподалеку от НЕВЫ продается зимний дом ДЛЯ ЖИЗНИ УЖЕ СЕЙЧАС!
Есть ВСЕ: электричество 15 кВт, магистральный газ, центральное водоснабжение, канализация (септик).
Вы цените комфортное проживание за городом- этот дом для Вас!
Продумано и учтено все для комфорта и уюта.
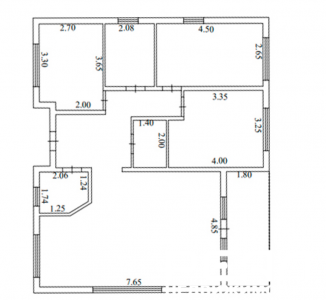
О ДОМЕ:
Дом одноэтажный. площадью 101,0 кв.м, Удобная функциональная планировка: кухня-гостиная 37,0 кв.м. три изолированные спальни 12,5+11,0+10.0 кв.м, высота потолка 3,0 м, предусмотрены помещения для постирочной и гардеробной.
Фундамент дома-плита, материал стен-газобетон, крыша-металло-черепица.
ОБ УЧАСТКЕ.
Земельный участок ИЖС, 12 сот, ровный, сухой,
установлены откатные ворота на пульте. На земельном участке имеется навес на две машины. Хоз.блок.

ВСЕ ДЛЯ ЖИЗНИ.
В Дубровке очень развитая инфраструктура: школа, дет.сад, развивающие центры для детей, большой парк с смотровой площадкой, пляж, почта, продуктовые магазины Магнит, кафе, пункт доставки OZON, аптеки, амбулатория, Торговый центр, Ж/Д станция. Имеется все необходимое для комфортного загородного проживания.
ТРАНСПОРТНАЯ ДОСТУПНОСТЬ.
От м. пр. Большевиков, м. Ладожская курсируют автобусы.
Электричка всегда по расписанию.
Личный автомобиль. На протяжении всего пути – асфальтированная дорога.
ИНФОРМАЦИЯ ПО СДЕЛКЕ
Безопасная сделка. Первая продажа от собственника. Собственник один взрослый человек. Полная сумма в договоре купли-продажи. Объект без обременений, без задолженностей, возможно использование ипотеки, субсидии. материнского капитала.
Предложение достойно рассмотрения. Просмотр в удобное для Вас время по договоренности.
Арт. 109355793
12 990 000 руб.
206 730,93 $ или 182 125,87 €
МЕСТОПОЛОЖЕНИЕ
Город:
Дубровка г.п.
Улица:
Московская ул.
Номер дома:
32
ДЕТАЛИ
Объект:
Тип сделки:
Этажность здания:
1
Тип дома:
блочный
ПЛОЩАДЬ
Общая площадь:
101
Жилая площадь:
33.5
Площадь зем. участка:
12

Продажа

Категория
Только звонить с 10.00 до 20.00.

Свой ДОМ! Нева! Лес!

25 км. от Санкт-Петербурга, в пос. Невская Дубровка, в окружении лесов, неподалеку от НЕВЫ продается зимний дом ДЛЯ ЖИЗНИ УЖЕ СЕЙЧАС!
Есть ВСЕ: электричество 15 кВт, магистральный газ, центральное водоснабжение, канализация (септик).
Вы цените комфортное проживание за городом- этот дом для Вас!
Продумано и учтено все для комфорта и уюта.
О ДОМЕ:
Дом одноэтажный. площадью 101,0 кв.м, Удобная функциональная планировка: кухня-гостиная 37,0 кв.м. три изолированные спальни 12,5+11,0+10.0 кв.м, высота потолка 3,0 м, предусмотрены помещения для постирочной и гардеробной.
Фундамент дома-плита, материал стен-газобетон, крыша-металло-черепица.
ОБ УЧАСТКЕ.
Земельный участок ИЖС, 12 сот, ровный, сухой,
установлены откатные ворота на пульте. На земельном участке имеется навес на две машины. Хоз.блок.

ВСЕ ДЛЯ ЖИЗНИ.
В Дубровке очень развитая инфраструктура: школа, дет.сад, развивающие центры для детей, большой парк с смотровой площадкой, пляж, почта, продуктовые магазины Магнит, кафе, пункт доставки OZON, аптеки, амбулатория, Торговый центр, Ж/Д станция. Имеется все необходимое для комфортного загородного проживания.
ТРАНСПОРТНАЯ ДОСТУПНОСТЬ.
От м. пр. Большевиков, м. Ладожская курсируют автобусы.
Электричка всегда по расписанию.
Личный автомобиль. На протяжении всего пути – асфальтированная дорога.
ИНФОРМАЦИЯ ПО СДЕЛКЕ
Безопасная сделка. Первая продажа от собственника. Собственник один взрослый человек. Полная сумма в договоре купли-продажи. Объект без обременений, без задолженностей, возможно использование ипотеки, субсидии. материнского капитала.
Предложение достойно рассмотрения. Просмотр в удобное для Вас время по договоренности.
Арт. 109355793

Связаться с продавцом

Загородная недвижимость
Земельный участок 24.83 сот. ИЖС

9 932 000 руб.
Загородная недвижимость
Жилой дом с участком 11 сот. ИЖС

Улица Дыбенко

16 990 000 руб.
Этажность здания 1
Общая площадь 146
Загородная недвижимость
Жилой дом с участком 1 сот. ИЖС

8 850 000 руб.
Этажность здания 2
Общая площадь 141.3
Загородная недвижимость
Жилой дом с участком 10.2 сот. в садоводстве

Ладожская

8 000 000 руб.
Этажность здания 2
Общая площадь 106.2
Загородная недвижимость
Земельный участок 19 сот.

7 600 000 руб.
Загородная недвижимость
Земельный участок 18.2 сот. ИЖС

7 280 000 руб.
Загородная недвижимость
Земельный участок 1 сот. в садоводстве

6 980 000 руб.
Загородная недвижимость
Земельный участок 17.33 сот. ИЖС

6 932 000 руб.
Загородная недвижимость
Земельный участок 17.28 сот. ИЖС

6 912 000 руб.

© Реал, 2005—2025 | Политика конфиденциальности

TechBox.one - Создание сайтов